Sorry, this property has already been rented
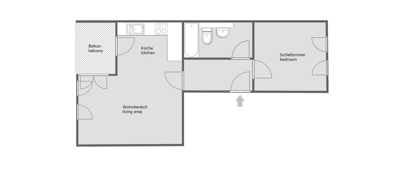
Beautiful, modernly furnished apartment with balcony
Translated by DeepL
Neighborhood
München Moosach
Shopping:
shops for all daily needs, supermarkets, florist, bakery, butcher shop, Olympia-Einkaufszentrum (shopping center)
Food and drink:
restaurants, cafés, bar, beer garden
Sport possibilities:
ice rink, fitness center, swimming pool, squash court
