Sorry, this property has already been rented
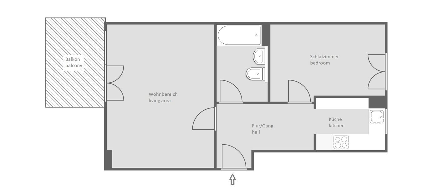
South of Munich - spacious 2-room apartment for rent
Neighborhood
Unterhaching
Shopping:
pharmacy, bakery, organic food store, florist, boutiques, drugstore, beverage store, butcher shop, greengrocer, dry cleaner's, supermarket, farmer's market
Food and drink:
restaurants, pizzerias, cafés, stand-up cafes, bars, beer gardens, pubs, ice cream parlor
Sport possibilities:
outdoor pool, fitness center
