Sorry, this property has already been rented
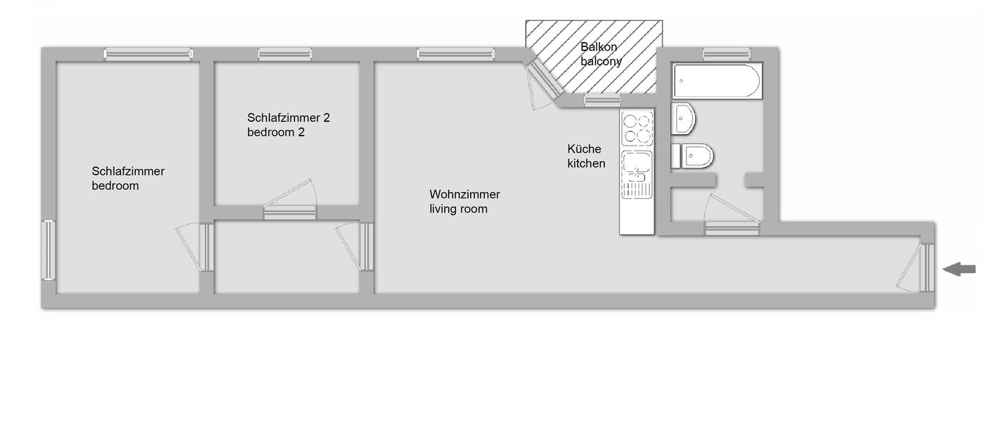
Sunny 3-room apartment with great view in Parkstadt-Bogenhausen
Translated by DeepL
Neighborhood
München Parkstadt Bogenhausen
Shopping:
pharmacy, bakery, organic food store, beverage store, dry cleaner's
Food and drink:
restaurants, cafés
