Light-flooded semit-detached house with sunny garden
We are proud to present this beautiful semi-detached house, nestled in a sunny plot of approx. 300 m2 at the end of a private driveway in a very quiet location. The main rooms face south and east and “live” from the close connection with the garden and the wonderful view of the greenery.
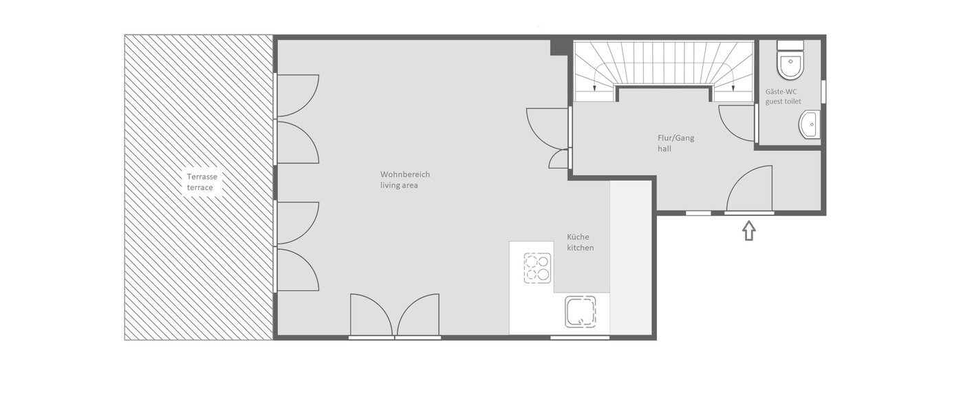
The spacious floor plan impresses with its linear and bright layout of the living spaces. On approx. 40m2 on the ground floor, there is a bright living/dining room with an open kitchen and cozy fireplace. The large window fronts allow an unobstructed view of the beautifully grown garden. The high-quality kitchen with ceramic worktop is fully equipped with all appliances and was newly installed in October 2023. The spacious entrance area with the staircase separated from the living room is well designed. Behind a sliding mirror door, there is a practical wardrobe that also provides plenty of storage space.
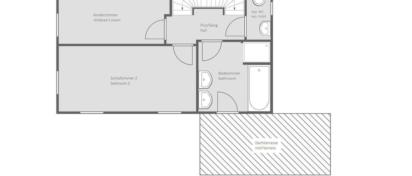
On the upper floor, there are two bedrooms, a large bathroom and a separate toilet. The tastefully designed bathroom is equipped with a large shower, bathtub, towel radiator and a custom-made base cabinet on which the two washbasins are located. The attic currently houses the master bedroom with an adjoining walk-in closet. A home office has also been created here.
The approx. 25m2 hobby room in the basement, which is bright thanks to 2 generous light wells, offers interesting options for use. A utility room with a washing machine and dryer is also available in the basement. A pantry equipped with another refrigerator and a freezer is right next to it. The cozy terrace with Bagkirai floorboards, the beautifully established garden, and the large carport that can accommodate and charge two vehicles, round off this attractive property. A very large tool shed, in which all utensils such as lawn mowers etc. can be conveniently stored, can be found next to the carport.
The municipality of Ottobrunn, with a population of approx. 21,000, is located on the southeastern edge of Munich, just 500 meters from the city limits. All shops for daily needs and schools are in the immediate vicinity. The property offered is close to the town center with a modern cultural center and numerous leisure facilities such as sports facilities, a cinema and restaurants. The new TUM School of Aeronautics further enhances the location. The train station is a 5-minute walk away, and the A8 motorway provides quick access to the Alps.
Translated by DeepL
Equipment:
Constructed:
2009
Rooms:
Living- and dining room with sofa and dining set
First bedroom with double bed (200 x 200 cm)
second bedroom with small double bed
Children's room
Walk-in closet
Bathroom with bathtub and shower
guest toilet
separate toilet
First bedroom with double bed (200 x 200 cm)
second bedroom with small double bed
Children's room
Walk-in closet
Bathroom with bathtub and shower
guest toilet
separate toilet
Floor coverings:
Parquet flooring, tiled floor, underfloor heating
Furnishing:
2-4 years old, beautiful, light-coloured furniture, very good, high quality
Kitchen:
open plan kitchen visually separated from the living room by a breakfast bar, with window, induction stove, electric oven, refrigerator with freezer compartment, dishwasher, microwave, dinnerware, kitchen utensils and equipment provided
Items:
Washing machine in the basement
Dryer in the basement
Satellite TV, two flat screen TVs
bed linen and towels included
incl. iron, ironing board and vacuum cleaner
Dryer in the basement
Satellite TV, two flat screen TVs
bed linen and towels included
incl. iron, ironing board and vacuum cleaner
Internet:
Internet flat rate (up to 50 Mbit/s)
Specials:
Light-flooded house
Terrace, roof-deck
Garden
Fireplace, home office space, storage room, Basement
Terrace, roof-deck
Garden
Fireplace, home office space, storage room, Basement
Parking:
Carport
with charging function for e-mobility
Costs included in the rent
with charging function for e-mobility
Costs included in the rent
Information on the rental price:
Inclusive: utilities, internet, carport
Extra: electricity, heating costs, water
Extra: electricity, heating costs, water
Security deposit:
3 months‘ rent
TV and radio license fee:
The monthly television and radio license fee for public broadcasters should be paid directly from the tenant to the ARD ZDF 18,36€ per month - not included in the rental price unless stated otherwise: further information
Landlord confirmation/ register of residence (Wohnungsgeberbestätigung) will be issued
Newcomers to Munich must register with the registration office within 2 weeks of moving in. For this you will need the landlord's confirmation letter (Wohnungsgeberbestätigung).
Public Transport
Neighborhood
Ottobrunn
Shopping:
pharmacy, bakery, butcher shop, drugstore, organic food store, greengrocer, beverage store, florist, dry cleaner's, supermarket, farmer's market
Food and drink:
restaurants, pizzerias, cafés, stand-up cafes, beer gardens, ice cream parlor, cinema
Energy Performance Certificate:
Year of construction: 2009
Type of Energy Performance Certificate: Energy consumption certificate
Main energy sources: gas
Energy efficiency rating: A
Energy consumption value: 46,50 kWh/(m²*a)
Type of Energy Performance Certificate: Energy consumption certificate
Main energy sources: gas
Energy efficiency rating: A
Energy consumption value: 46,50 kWh/(m²*a)
