Exclusively furnished apartment for rent

Regerstraße
81541 München
ID 13050
€ 4,200.-
incl.: utilities, electricity, Heating and water , internet;
opt.: underground parking

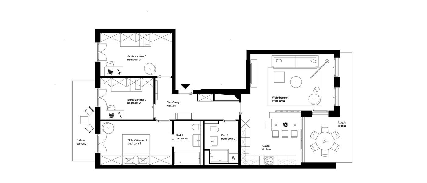
4 room
ca. 101 m²
Floor 6
available from
now for 6-7 months
min. rental period
6 months
Number of tenants
suitable for 4 persons
Service fee
None
restrictions
only for non-smokers, suitable for shared apartment, no pets

Video tour

View your new home easily and
conveniently from anywhere.

Video

High-quality furnished and equipped 4-room apartment in Munich Au/Haidhausen

This elegant apartment combines modern living comfort with high-quality interior design. Two bathrooms (including an en-suite bathroom off the master bedroom), herringbone parquet flooring, electric shutters on all windows, beautiful built-in furniture in the bedrooms by Lignum Arts, a large loggia, and a balcony ensure relaxed living. The furnishings leave nothing to be desired (including high-speed internet and a washer-dryer (BOSCH) integrated into the white bathroom) and impress with their select quality, such as the original Pampa Mariposa Butterfly Chair by Cuero, the original Fritz Hansen side tables, the living room carpet made of pure new wool, the 55" Smart TV Samsung QLED 4K with Sonos Beam soundbar and Sonos wireless box, the Eames Plastic Armchair DAR dining chairs, the pocket spring mattress with 2 degrees of hardness H2 & H3 in bedroom 1, the Eiermann E2 desk and Vitra Panton chair in bedroom 2, and the desk and stackable loungers from Müller Möbelwerkstätten in bedroom 3. Careful attention was also paid to the lighting (Foscarini Twiggy floor lamp, Flos BRO pendant lamp, Artimide Pirce Soffitto ceiling lamps, Muuto table lamps), as well as the high-quality wallpaper. The kitchen is also equipped to a high standard, including a DeLonghi coffee machine and a Miele stove.

The apartment is located in the trendy yet traditional district of Au-Haidhausen, in the new development area at Nockherberg, near Regerplatz. The balcony in front of the two smaller bedrooms faces the beautiful and already completed smaller courtyard. From the large loggia in front of the living room, you have a wonderful unobstructed view over the rooftops to the church on Giesing Berg, which dominates the cityscape.

A spacious underground parking space (corner space) is available as an option, and a 14 sqm basement compartment with shelves belongs to the apartment.

Equipment

Internet
Television
Vacuum cleaner
Washer
Tumble dryer
Dishwasher
Towels
Linens
Hair-dryer
Iron
Basement
Garage
Lift
Balcony
Terrace

Information

Floor
6th - with lift
constructed
2022
Rooms
living- and dining room with sofa and dining set
First bedroom with double bed (180 x 200 cm)
second bedroom with single bed (90 x 200 cm)
third bedroom with two single beds (90 x 200 cm), (can also be converted into a double bed)
Two bathrooms
Floor coverings
herringbone parquet floor, tiled floor, underfloor heating
Furnishing
like new, exclusive, modern style
Kitchen
high quality kitchen open to the living area, with window, refrigerator with freezer compartment, dishwasher, induction stove, electric oven, extractor hood, dinnerware, kitchen utensils and equipment provided
Items
Washer-dryer combo in the apartment
Flat screen TV
including bed linen, towels and blow-dryer
incl. iron, ironing board and vacuum cleaner
Internet
WiFi
internet flat rate (up to 300 Mbit/s)
costs included in the rent
Specials
Light-flooded apartment
Balcony, covered balcony
Roof terrace for shared used
View of the green inner courtyard
Basement
Parking
Underground garage (individual space) optional - further details: Parking in Munich
monthly costs 150,-€
costs not included in the rent
Information on the rental price
Inclusive: utilities, costs for electricity up to the amount of 100.- € /month, Heating and hot water costs up to the amount of 120.- € /month, internet
Optional: underground garage (individual space) 150.- € /month
security deposit
2 months rent
TV and radio license fee
The monthly television and radio license fee for public broadcasters should be paid directly from the tenant to the ARD ZDF 18,36€ per month - not included in the rental price unless stated otherwise: further information
Energy Performance Certificate
Year of construction: 2021
Type of Energy Performance Certificate: Energy demand certificate
Main energy sources: district heating
Energy efficiency rating: B
Final energy demand: 55,90 kWh/(m²*a)
Nicole Kaufmann

Nicole Kaufmann

Team Lead | Real Estate Rentals

Haven't found the right flat yet?

Our rental team will be happy to help you with your search. Simply fill out our search request form and we will get back to you as soon as possible.

Submit search inquiry

Location of the apartment

Regerstraße

München Au

  • good living location
  • ca. 2,0 km south of Munich-center
More about the neighborhood
underground
Routes U1, U2 and U7, Station Kolumbusplatz (5 minutes on foot)
suburban train
Routes S3 and S7, Station St-Martin-Straße (10 minutes on foot)
Routes S1, S2, S3, S4, S6, S7 and S8, Station Rosenheimer Platz (5 minutes on foot)
tram
Routes 18, 25 and N27, Station Ostfriedhof (5 minutes on foot)
bus
Routes 58, 68, N45 and X30, Station Ostfriedhof (5 minutes on foot)
Routes 62 and N45, Station Regerplatz (6 minutes on foot)

Similar objects

apartment with 3 room | Munich-Au-Haidhausen | 13287
Video
26.01.2026 for 6-10 months
3 room
55 m²
Munich-Au-Haidhausen
2,300
€/Month
apartment with 2 room | Munich-Au-Haidhausen | 7905
Video
now for 6-36 months
2 room
76 m²
Munich-Au-Haidhausen
2,500
€/Month
apartment with 1 room | Munich-Au-Haidhausen | 14250
Video
01.02.2026 until 31.05.2026
1 room
35 m²
Munich-Au-Haidhausen
1,700
€/Month
penthouse with 3 room | Munich-Au-Haidhausen | 14243
Video
now for 3-5 months
3 room
118 m²
Munich-Au-Haidhausen
6,000
€/Month
attic apartment with 3.5 room | Munich-Au-Haidhausen | 14648
Video
01.02.2026 for 6-12 months
3.5 room
100 m²
Munich-Au-Haidhausen
3,400
€/Month

Frequently asked questions

Our service is free of charge for you as a tenant. After signing the contract, you pay the landlord the monthly rent and a one-off deposit (usually two months' rent).
If you have found a suitable offer on our website or would like us to send you suitable offers, please first fill out our registration form in full. Our consultants will then contact you as soon as possible to discuss the next steps. We would be happy to arrange a viewing appointment on site. Once you have decided on an apartment, we will discuss this with the landlord and draw up the rental agreement once approval has been granted.
The specified rental period is binding. For example, if an apartment is offered for 1 June, it cannot be rented earlier and, as a rule, not significantly later. If your desired rental period differs from the offer, please inform your consultant. If a fixed end date is specified, the apartment cannot be extended. In the case of a variable rental period, slight deviations may be negotiable with the landlord.
Private providers of flats and houses in Munich are subject to a minimum rental period of six months. The city of Munich considers rental periods of less than six months to be misuse of residential space, which is why we only arrange flats and houses for a minimum of six months or longer.
Commercial providers such as serviced apartments, on the other hand, are not allowed to rent for longer than 6 months in many locations. We therefore distinguish between short-stay and long-term offers.
In the Tegernsee region, private providers are also allowed to rent for shorter periods, which means we can offer furnished rentals here for as little as one month.
If you would like to view the property in person, please let us know. If the flat is still rented, our consultants will arrange an appointment with the current tenant. If the flat is already vacant, appointments can usually be arranged at short notice. Please note that the flat is usually rented to the person who makes a binding commitment first. Therefore, please do not plan your appointments too late, as the properties you are interested in may be rented out in the meantime.
Upon request, you can view our properties virtually via video call. On our website, you will find high-quality photos and videos of the property and its surroundings, as well as additional detailed information about each property.
The rental agreement is concluded between the tenant and the landlord. In most cases, the rental agreement is drawn up by Mr. Lodge – in consultation with the tenant and landlord – and forwarded to both parties for signature.
As agreed in the tenancy agreement, the flat must be professionally cleaned before it is returned. When you move out, a commercial final cleaning will be carried out by a specialist company commissioned by the landlord. The costs are based on the amount of work involved and are usually borne by the tenant. The landlord receives the invoice from the cleaning company and offsets the costs against the deposit. Thorough pre-cleaning can reduce the costs of commercial cleaning. Please refer to our checklist for details of what is included in a final cleaning.
Cookie notice
This website uses cookies to personalize content, customize and measure advertising, and provide a safe experience. By clicking the "Allow all and continue" button, you consent to the collection of data via cookies.
Please enable cookies in your browser settings!